Dodaj produkty podając kody
Dodaj plik CSV
Wpisz kody produktów, które chcesz zbiorczo dodać do koszyka (po przecinku, ze spacją lub od nowej linijki).
Powtórzenie wielokrotnie kodu, doda ten towar tyle razy ile razy występuje.
Uchwyt tokarski 160mm - Bison 3274
- Uchwyt tokarski 160mm - Bison 3274
Uchwyt tokarski 160mm - Bison 3274
Właściwości uchwytu:
- Szlifowane powierzchnie robocze
- Uniwersalny sposób mocowania: mogą być montowane na wrzecionie obrabiarki przy pomocy tarczy zabierakowej zarówno od tyłu jak i od przodu uchwytu
W komplecie:
- 1 kpl. szczęk jednolitych twardych zewnętrznych
- 1 kpl. szczęk jednolitych twardych wewnętrznych
- klucz do uchwytu
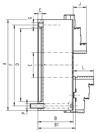
Wymiary uchwytu[mm]:
- A - 160
- B - 64,5
- B1 - 69,3
- C - 4
- D - 125
- E - 42
- F - 140
- G - 3xM10
- J - 32
- L - 43
- P - 3xM10
Waga - 10kg
Gwarancja producenta na 1 rok
Producent gwarantuje naprawę lub wymianę sprzętu do 12 miesięcy od daty zakupu. Skontaktuj się ze sklepem za pośrednictwem formularza reklamacji.
Zapytaj o produkt
Napisz swoją opinię





